2024.09.28
擁壁の話
不動産コラム担当 市原です。
擁壁(ようへき)という言葉をご存じでしょうか?
私共、不動産や土木、建築に従事する人間にはおなじみの言葉ですが、
特に不動産を探し始めた皆様には馴染みのない言葉かもしれません。
擁壁とは、崖や斜面地において、土圧を保持する為の壁状の築造物のことです。
一般的な塀や壁との大きな違いは、
「壁状の築造物」に土圧(土壌及び水の重量)がかかっている、という事です。
第5回のコラムにも挙げたように隣地との高低差がある土地、
若しくは敷地内で高低差 がある土地の場合、高い方の敷地の圧力を受ける場合、
コンクリートブロック(CB)でも ブロックの厚さを厚くする必要があります。
前出の土圧のところにカッコ書きで、(土壌及び水の重量)と記載しましたが、
土による圧力以外に水による圧力もかかります。
「水」の圧力は侮ってはなりません。
土地を探している方や建物を建てる方から
「壁についている穴から汚い水が出ている。塞いでよいか?」
という質問をされることがあります。
この「水抜き穴」は何の為にあるのでしょうか?
擁壁にかかる水圧を減らす為です。
水抜き穴から水が出ている、という事は擁壁にかかる水圧を緩和している、
という事です。
土木の世界では、「みずみち」という言葉を使いますが、これは、土中の水の経路のことを 言います。
地下水の深度が浅い日本においては、従前地(元々の土地)の「みずみち」の経路が宅地
造成により遮断されることはよくあります。
遮断された「みずみち」は、土中圧の 弱いところに流れ、新しい「みずみち」が形成されます。
水が逃げづらい場所においては、 擁壁内に水が溜まり、擁壁に圧力をかける場合があります。
それを排出するのが「水抜き穴」です。
土地を見に行く時は、擁壁に「水抜き穴」がしっかりあるか、確認が必要です。
また、水抜き穴は「あればよい」のではなく、壁面積に対して、適切な数が設置されて
いる必要があります。
土圧や水圧により、擁壁が倒壊して隣地に被害を与えた場合は、隣地から損害賠償請求を
受ける訳ですから、当然必須のチェック項目です。
横浜市や横須賀市、三浦市、逗子市、鎌倉市は傾斜地が多いことから、高低差がある土地
については注意を要するエリアです。
土地探しや不動産探しをする場合、この擁壁に対する判断が非常に重要になります。
擁壁にはどのような種類があるのでしょうか?
代表的なものとして
1.間知擁壁
コンクリートで成形されたブロックを斜めに石積みした擁壁のことを言います。
現場 で施工されます。間知擁壁の基礎の突端部分が敷地境界となります。
↑ 間知擁壁
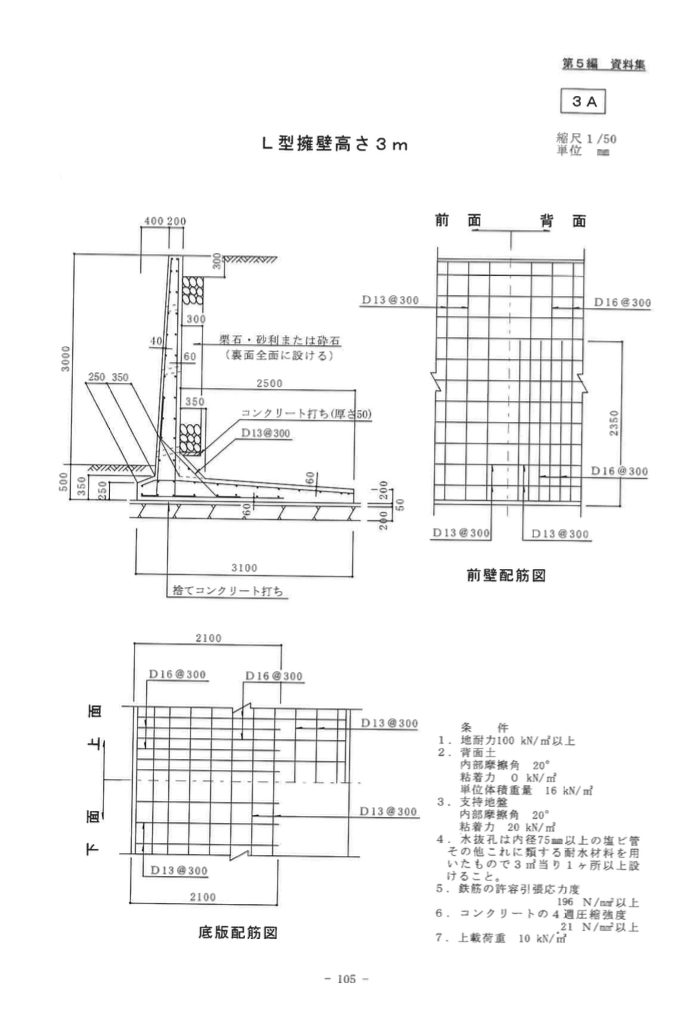
2.L型擁壁
コンクリートと鉄筋で作られた断面がL型の擁壁を言います。現場施工と成形されたもの
があります。擁土中下部の突端が境界となります。
↑ L型擁壁 ↑ L型擁壁(型枠)
3.石積み
これはもはや擁壁ではありません。隣地の土圧を支えてはおりますが、
構造については、 計算されて設置されたものではありません。
崖と同じ扱いとなります。
↑ 石積み
擁壁は敷地が高い方の地盤を保持するので、現在では敷地が高い方の所有物となります。
昔は擁壁の所有の考え方は曖昧でした。
近年の地球温暖化の影響でゲリラ豪雨等の被害も広がり、それまでの法令による宅地造成に関する法令でも対処しきれない状況と出てきております。
少なくとも2mを超える擁壁は、担当行政の法令に基づいて許認可を受けた造成地を購入することを、お勧めします。
もしくは、担当行政が認定している擁壁で施工された住宅用地を購入することをお勧めし ます。
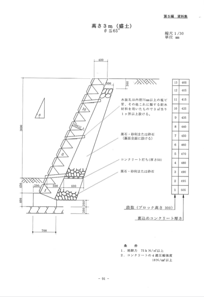
↑ 横浜市間知擁壁断面図3m ↑ 横浜市L型擁壁断面図3m
擁壁がある場所には地下車庫が設置されている場合があります。
この地下車庫も扱いが厄介です。
成形コンクリート(プレキャストコンクリート)を土中に埋めて、その中を駐車場になっているもの「カルバート」と、「現場打ち」と言って型枠を組んで駐車場とする場合、もう一 つはコンクリートブロック(CB)を積んで、上部にコンクリート板を設置しているパター ンもあります。
何が厄介かというと、
建物が地下車庫の上に乗る場合、地下車庫の構造が建物の荷重に耐え得るものであるのか、 判断が難しい、という事です。
新築を計画し建築確認申請をする場合、設計者としては、地下車庫が新たに建てる建物を 保持できる証明をする必要があります。
当然ですが、それが証明できなければ、確認済証は交付されません。
現在のボックスカルバートの耐用年数は、何年でしょうか?
型式認定書類が残っていれば証明も可能ですが、30年を超える戸建て住宅においては、 当時の書類を廃棄しているケースが大変多いので、あまり期待は出来ません。
また、型式認定書類があったとしても、しっかりとメンテナンスをしているかも判断の対象となります。
現場打ちに至っては、耐用年数の証明が困難な場合が多いです。
CB積地下車庫は、もはや工作物として見做されません。
近年、問題視される擁壁等に関する工作物があります。
「2段擁壁」の問題です。
昔は擁壁上の工作物に対して、大らかだったので、敷地をより広く使う為に、擁壁上にコ ンクリートブロック(CB)とフェンスを築造するケースが多くありました。敷地をより広 く使う為なので、擁壁上に設置したブロックを土留めとして、土を入れるケースもありまし た。悪質なケースでは間知擁壁部分にオーバーハングさせて鉄骨を組み、敷地として使用しているケースもあります。
これらの全てが、擁壁に必要以上の土圧をかけている、として、新築時には撤去する必要
があります。
買主としては、撤去を前提とした価格提示をする必要があります。
最後にまとめとして、擁壁に関する注意点を列記します。
1.2mを超える擁壁がある場合は、担当行政の基準を満たしているか確認すること。
2.担当行政の認定擁壁でない場合は、擁壁の強度を証明できなければ、崖の扱いになる場合があるので注意が必要。
3.2段擁壁がある場合は、新築時に上部の工作物の撤去を担当行政から要請されることが あるので注意が必要。
4.地下駐車場付きの土地の場合、地価駐車場の上に建物を載せられない場合があるので、 注意が必要。
5.擁壁の所有権を確認しましょう。
6.地下駐車場の上には建物が載せられない場合が多いので、注意が必要。
7.擁壁に「水抜き穴」があるか注意しましょう。

-225x300.jpeg)

